Grootste netwerk, grootste (verkoop)kans
Zeist: 030-69.175.77

Zeist, Gerolaan 99

€ 995.000 k.k. Verkocht
Adres Gerolaan 99
Plaats ZEIST
Prijs € 995.000 k.k.
Bouwjaar 1999
Soortbouw Bestaande bouw
Typebouw Eengezinswoning
Typewoning 2-onder-1-kapwoning
Aantal kamers

In de groene wijk “Valckenbosch” (nabij het centrum) aan de kindvriendelijke Gerolaan staat deze zeer royale, perfect onderhouden, half vrijstaande en in 2020 aan de achterzijde prachtig uitgebouwde villa.

Woonoppervlakte van maar liefst 189 m² met inpandige garage. De functioneel ingerichte woning combineert moderne luxe, comfort, ruimte en een centrale ligging. De woning heeft een vrij uitzicht aan de voorzijde en een zonnige en beschutte achtertuin op het zuiden met veel privacy, mooie tuin welke zeer beschut is en op het zuiden met veel privacy, houten overkapping (veranda) met tuinberging en achterom. De woning is gelegen op een ruim perceel van 320 m² met eigen oprit met parkeergelegenheid voor twee auto’s.

Omgeving
Centraal gelegen o.a. ten opzichte van Amersfoort, Utrecht, het Universiteitscentrum Utrecht Science Park (USP) voorheen de Uithof op 15 minuten fietsafstand en de diverse uitvalswegen. De Gerolaan ligt op een bijzonder goede locatie, het Waterwinpark, het winkelcentrum van Zeist, waaronder de Slotlaan. Het centrum, met een compleet winkelbestand, kent diverse leuke restaurantjes, cafeetjes en gezellige terrassen. Het bos om heerlijk te wandelen of te fietsen zijn op korte afstand gelegen, alsmede diverse (basis- en middelbare) scholen en sportverenigingen binnen een straal van enkele honderden meters.

Indeling

Begane grond:
Luifel bij de voordeur. Ruime entree, toilet met fontein, meterkast en trapkast met geïntegreerde garderobe, zeer royale living in L-vorm inclusief aan de achterzijde de volledig uitgebouwde woonkeuken van ca. 38 m² met twee prachtige dakvensters, zonwering en vloerverwarming. De living aan de voorzijde is voorzien van een gas- open haard, visgraat parketvloer en kan worden gescheiden van de woonkeuken door industriële deuren met soft-closing. Uitgebouwde keuken is compleet en voorzien van alle benodigde apparatuur. In 2020 is het composiet werkblad, de oven en kookplaat, spoelbak, vaatwasser, Quooker (2023) en koffie corner vernieuwd. De keuken is tevens voorzien van een (tweede) sfeervolle gas- open haard. Toegang vanuit de keuken naar de tuin via hardhouten schuifpui met royaal terras op het zuiden als ook naar de verwarmde garage annex bijkeuken met elektrisch bedienbare sectionaal deur.

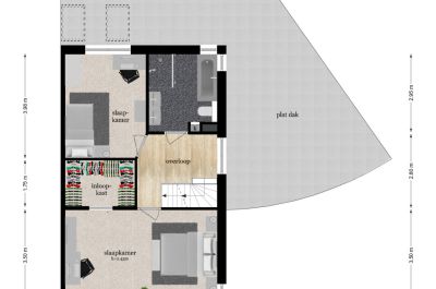
1e verdieping
Via de hardhoutentrap komt u op de ruime overloop met toegang naar de royale master bedroom (voorheen twee slaapkamers) aan de voorzijde met toegang naar het balkon en een royale inloopkast. Aan de achterzijde bevindt zich nog een ruime slaapkamer en een zeer complete luxe badkamer (grotendeels uit 2018) voorzien van ligbad met whirlpool, inloopdouche, tweede toilet, badmeubel, designradiator en vloerverwarming. De eerste en tweede verdieping zijn in 2020 voorzien van een nieuwe laminaatvloer.

2e verdieping
Hardhoutentrap, overloop met aansluiting/opstelling cv-ketel (2018) met regulier onderhoud wat in 2025 is uitgevoerd, wasmachine/droger, tweede mooie badkamer met douche, derde toilet en badmeubel. Een zeer royale slaapkamer aan de voorzijde met slaapzolder en dakkapel met shutters. De tweede slaapkamer met Velux-dakraam en veel bergruimte achter de knieschotten.

Tuin
De fraai aangelegde tuin is op het zuiden gelegen en biedt diverse zit mogelijkheden waaronder een houten overkapping (veranda) met heater. Tevens is de tuin voorzien van verlichting, berging en wifi. Er is een achterom en een aparte opstelplaats voor de vuilcontainers.

Bijzonderheden
- Bouwjaar 1999;
- Uitbouw 2020;
- Woonoppervlakte circa 189 m²;
- Inhoud circa 716 m³;
- Perceeloppervlakte 320 m²;
- Woning heeft een achterom;
- Alarmsysteem aanwezig;
- Achterzijde voorzien van elektrische zonwering;
- Volledig geïsoleerd, woning, gevels, dak, vloer en ramen Energielabel A;
- 2 badkamers, 3 toiletten, ruime living/woonkeuken, inloopkast, 2 gas- open haarden;
- Begane grond, entree en 1e verdieping zijn glad gestuct;
- Schilderwerk buitenzijde in 2020 gedaan en in 2025 nagelopen;
- Dak door zuid ligging voorzien van 14 zonnecollectoren (2022);
- Ruime parkeerplaatsen op eigen terrein (2) maar ook in de buurt;
- Gerolaan is een straat voor jong en oud met grote onderlinge betrokkenheid en met veel activiteiten (straatspeeldag, running diner, etc.);
- Huidige eigenaren zijn eerste bewoners;
- Huis in perfecte staat van onderhoud, instap klaar;
- Direct bewoonbaar;
- Oplevering in overleg.

Terug naar het overzicht
© 2026 Nassau Makelaars Zeist